Elegant newly built independent apartment in Cecina
345,000 €
Ref.: A9591RP158
Bedrooms
Bathrooms
Property size
Modern 106 sqm residence in Class A4 with large garden and garage in a prime area
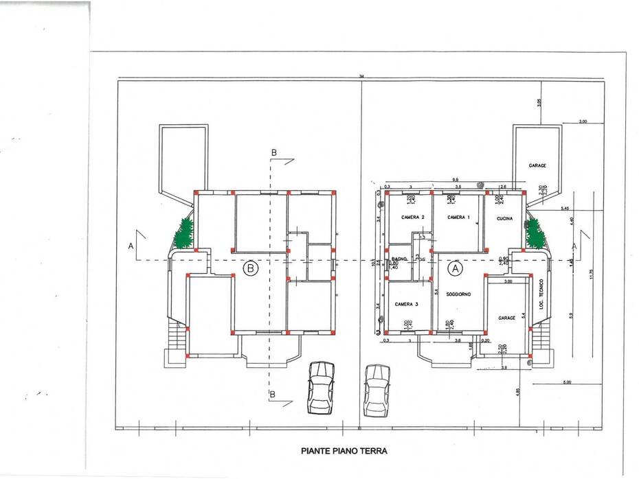
Independent apartment for sale in Cecina. New construction in Class A4, 106 sqm on a single level with 3 bedrooms, 2 windowed bathrooms, 160 sqm garden, and garage. Underfloor heating, premium finishes, and maximum independence.
General Description:
In one of the most prestigious and sought-after residential areas of Cecina, we offer for sale a stunning newly built housing solution, unique in its independence and technology. The property, with approximately 106 sqm of living space, is completely independent, free on three sides, and developed entirely on a single level on the ground floor. Designed to combine contemporary aesthetics with the highest standards of environmental sustainability, the property will be built with latest-generation construction technologies to achieve Class A4 energy certification, ensuring excellent living comfort and minimal energy consumption.
Interior Description:
The home boasts an extremely functional and rational space distribution, designed for modern family life:
Living Area: Entrance is through a 10 sqm covered porch leading to a large and bright living room. The kitchen is eat-in and spacious, ideal for those who love socializing.
Sleeping Area: A hallway separates the living area from the sleeping quarters, which include a master bedroom and two single bedrooms.
Services and Accessories: There are two bathrooms, both windowed to ensure natural light and ventilation, as well as a practical storage room.
The high-quality specifications include customizable finishes and first-choice materials that enhance the modernity of the environments.
Exterior Description:
The property is embraced on three sides by a spacious exclusive garden of approximately 160 sqm, distributed between front and back, offering the ideal space for outdoor relaxation, children's play, or for housing pets. An elegant entrance porch adds architectural and functional value. Completing the equipment is a garage of approximately 20 sqm of excellent size, directly connected or adjacent to the home, ensuring convenience and safety for parking and storage.
Main Features:
Living area: 106 sqm
Rooms: 6
Bedrooms: 3 (1 double, 2 singles)
Bathrooms: 2 (both windowed)
Floor: Ground (single level)
Garden: Private 160 sqm
Garage: 20 sqm
Loggia/Porch: 10 sqm
Condition: New construction
Energy Class: A4
Utility Details:
The property represents the excellence of energy efficiency. It features a latest-generation underfloor heating system and full pre-installation for air conditioning in every room. Thermal and acoustic insulation is guaranteed by high-performance window frames and cutting-edge insulation systems. Utilities are totally independent, allowing for extremely advantageous cost management thanks to the building's technological integration.
Uses and Potential:
This property is the ultimate choice for a family desiring a "forever" home, free of architectural barriers and equipped with every modern comfort. Total independence and the absence of condominium fees make it a safe and lasting investment. Thanks to its location in a prime area in Cecina, the property maintains very high market appeal, making it also ideal for those looking for a representative primary residence just minutes from the sea and all the city's primary services.
Tourist and Historical Information:
Cecina is the beating heart of the Etruscan Coast, a dynamic city offering a superior quality of life. Famous for its centuries-old pine forests stretching to the Blue Flag beaches of Marina di Cecina, the city is also a cultural center rich in history, from the Roman remains of the San Vincenzino Villa to the surrounding hilltop villages like Bolgheri. Living in Cecina means having access to excellence in services, high-level gastronomy, and a strategic position for exploring the entire Tuscan archipelago.
Distances:
Cecina Center: 1 km
Beaches (Marina di Cecina): 2.5 km
Bolgheri: 12 km
Castiglioncello: 15 km
Cecina Hospital: 1.5 km
Livorno Port: 35 km
Pisa Airport: 60 km
Florence: 110 km
Ref.:A9591RP158
Price:345,000 €
Type:Independent apartment
Property size:106 sqm
Condition:New building
Rooms:6
Bedrooms:3
Bathrooms:2
Kitchen:Habitable
Heating:Floor Heating
Garden:160 sqm
Garage:20 sqm
Energy class:A4
EPI kwh/m2 anno:>175
Air conditioner
Garden
Garage
City:Cecina
Locality:-
Province:Livorno
Region:Tuscany
Country:Italy









