Independent building with private courtyard for sale in the center of Subbiano (Arezzo)
160,000 €
Ref.: A8998TA2520994A
Bedrooms
Bathrooms
Property size
Three-story property of 298 sqm with four housing units, garage, and redevelopment potential
Independent 298 sqm building for sale in Subbiano. Four apartments, private courtyard, garage, cellars. Excellent investment opportunity for renovation.
General Description:
Located in a quiet and well-served area of Subbiano, this independent building with a private courtyard extends over three levels for a total of about 390 sqm. The property requires renovation and offers excellent potential as a multi-family residence or a real estate investment with multiple apartments.
Interior Description:
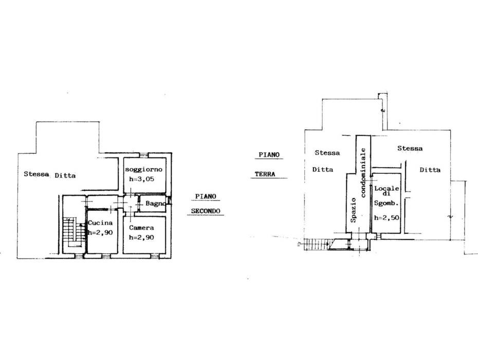
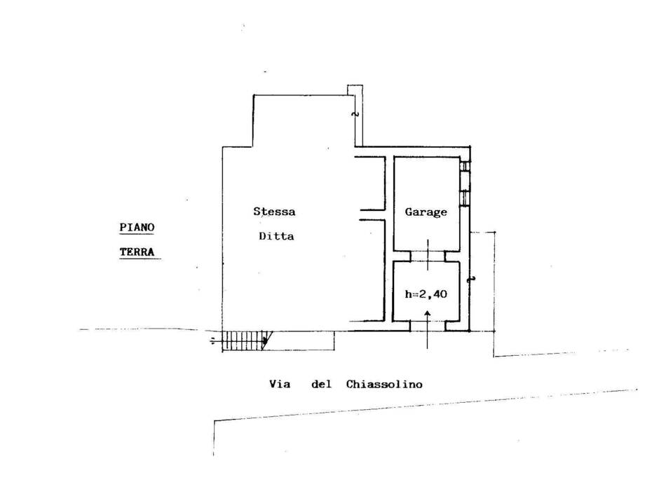
On the ground floor, there is a 90 sqm cellar area and a 36 sqm garage, suitable for storage or workshop use.
The first and second floors each contain two apartments (approximately 70 sqm and 60 sqm), for a total of four registered units. The current layout includes living rooms, small kitchens, bedrooms, and bathrooms, easily reconfigurable into a larger single home or several independent flats.
Outdoor Spaces and Annexes:
The property features a private courtyard, offering outdoor living space and privacy. Thanks to its autonomous structure and central location, it is suitable for conversion into a large family home or a small accommodation facility.
Main Features:
Surface: 298 sqm (total approx. 390 sqm)
Rooms: 8
Bedrooms: 6
Bathrooms: 4
Kitchen: kitchenette
Garage: 36 sqm
Cellars: 90 sqm
Private courtyard
Condition: to renovate
Energy class: pending
Uses and Potential:
Ideal for families, investors, or those wishing to create multiple housing units within one building. Also suitable for tourist accommodation projects, given its proximity to services and transport.
Local Real Estate Market:
In Subbiano, independent or semi-detached houses requiring renovation typically range between € 1,000 and € 1,600 per sqm. Properties with redevelopment potential and central location are in increasing demand, particularly for residential and rental use.
Touristic and Historical Information:
Subbiano is a medieval village along the Arno River, at the gateway to the Casentino Valley, known for its castles, Romanesque churches, and natural parks. Its location near Arezzo and the main Tuscan routes makes it a peaceful yet connected place to live or invest.
Distances:
Arezzo center: 13 km
Capolona: 5 km
Castiglion Fiorentino: 30 km
Cortona: 45 km
A1 Highway: 25 km
Florence: 80 km
Ref.:A8998TA2520994A
Price:160,000 €
Type:Apartment building
Property size:298 sqm
Condition:To restore
Tot. floors:2
Rooms:8
Bedrooms:6
Bathrooms:4
Kitchen:Small kitchen
Garage:36 sqm
Energy class:G
EPI kwh/m2 anno:250
Garage
City:Subbiano
Locality:-
Province:Arezzo
Region:Tuscany
Country:Italy
























