Cozy three-room apartment with garden and garage in Suvereto
190,000 €
Ref.: A6621RA2549781A
Bedrooms
Bathrooms
Property size
Modern 63 sqm apartment with dining loggia within walking distance of the historic center
Apartment for sale in Suvereto, Livorno. 63 sqm ground floor unit with 2 bedrooms, bathroom, 90 sqm garden, and 15 sqm garage. Semi-new, furnished with dining loggia. Quiet residential area near services.
General Description:
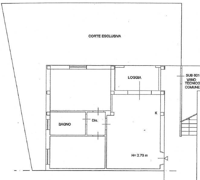
If you are looking for a home that combines the tranquility of an elite residential area with the convenience of walking to one of Italy's most beautiful villages, this apartment in Suvereto is the ideal solution. We offer for sale a cozy three-room apartment of approximately 63 sqm, located on the ground floor of a pleasant and recent housing complex. The property is in impeccable condition, as good as new, offering excellently distributed rooms and a rare combination of private outdoor spaces (garden and loggia) and functional appurtenances such as the garage. The property is sold fully furnished, making it move-in ready.
Interior Description:
The interior of the home is characterized by a modern and rational distribution of volumes, designed to maximize daily comfort:
Living Area: Composed of a bright living room with an integrated kitchenette. This environment is the heart of the house and connects directly to the outside via a convenient dining loggia, perfect for outdoor breakfast and dinners.
Sleeping Area: A hallway leads to the master bedroom, the single bedroom (ideal for children or a study), and the functional bathroom.
The finishes are of high quality, consistent with the "semi-new" status of the construction, ensuring a fresh and contemporary aesthetic.
Exterior Description:
The outdoor space is the true added value of the property: a private garden of approximately 90 sqm that surrounds the home, offering an exclusive green area for relaxation or pets. The covered loggia allows for enjoying the outdoors in every season. Completing the property in the basement is a garage of approximately 15 sqm, ideal for car storage or as precious additional space for tools and bicycles. The building is set in a quiet and well-maintained context, with facades in excellent condition.
Main Features:
Living area: 63 sqm
Rooms: 3
Bedrooms: 2 (1 master, 1 single)
Bathrooms: 1
Floor: Ground
Garden: Private, approx. 90 sqm
Loggia: Covered dining area
Garage: 15 sqm included
Condition: Semi-new
Furnishings: Fully included
Heating: Independent
Utility Details:
The property is equipped with an independent methane heating system, ensuring individual consumption management. The systems are recently built and fully compliant with current regulations, ensuring energy efficiency and safety. The ground floor position and exposure favor good natural brightness and ease of access without significant architectural barriers.
Uses and Potential:
This property represents the ideal choice for a young couple or a small family looking for a permanent residence in a safe and well-served village. Thanks to the presence of the garden and loggia, the apartment is also very attractive as a holiday home for those wishing to explore the Val di Cornia and the Etruscan Coast. The excellent maintenance status and furnished delivery make it a "turnkey" investment with great potential for the high-end rental market.
Tourist and Historical Information:
Suvereto, a walled medieval village between the hills and the sea, is officially listed among the "Most Beautiful Villages in Italy" and boasts the Orange Flag from the Touring Club. Famous for the production of excellence wines (Suvereto DOCG) and for its gastronomy linked to game and EVO oil, the town offers cultural events throughout the year. The location allows reaching the beaches of Rimigliano Park and the Gulf of Baratti in just 15-20 minutes.
Distances:
Suvereto Historic Center: 0.5 km
Venturina Thermal Baths: 9 km
Rimigliano Park (Sea): 16 km
Gulf of Baratti: 18 km
Campiglia Marittima: 10 km
San Vincenzo: 18 km
Piombino (Ferry to Elba): 25 km
Pisa Airport: 95 km
Ref.:A6621RA2549781A
Price:190,000 €
Type:Apartment / flat
Property size:63 sqm
Condition:Semi-new
Tot. floors:2
Rooms:3
Bedrooms:2
Bathrooms:1
Kitchen:Kitchenette
Heating:Independent
Garden:100 sqm
Garage:15 sqm
Energy class:G
EPI kwh/m2 anno:>175
Furnished
Garden
Garage
City:Suvereto
Locality:-
Province:Livorno
Region:Tuscany
Country:Italy



















