Apartment for sale in Chiusi
145,000 €
Ref.: A6380RA2537008A
Bedrooms
Bathrooms
Property size
Independent apartment in ancient farmhouse with 35 mq garage and attic in Montallese
Approximately 160 sqm total apartment for sale in Chiusi (Montallese). Property with 4 bedrooms, independent entrance, garage, and cellar. No condo fees, ideal for families near services.
Descrizione Generale:
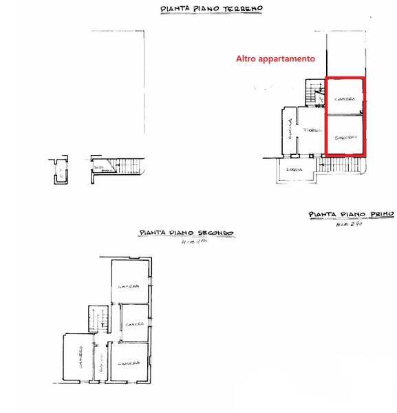
In the quiet hamlet of Montallese, in the municipality of Chiusi, we offer for sale an interesting apartment of about 130 sqm of living space, located within an ancient Tuscan farmhouse. The property, which develops over two levels plus an attic and annexes, enjoys an independent entrance and the total absence of condominium fees, ensuring maximum autonomy. The building, despite having ancient origins, has been subject to constant maintenance and major structural interventions, including the consolidation of the entire building and the renovation of the roof carried out in 2005. The central position relative to the hamlet allows easy access to residential services in an authentic historical context.
Descrizione Interni:
The residence opens on the first floor, reachable via a characteristic external staircase enriched by a loggia. The entrance leads directly to the living area, consisting of a dining room with a functional kitchenette. Moving to the second floor, the sleeping area hosts three large double bedrooms, a single bedroom, and a windowed bathroom with a shower. Through a retractable ladder located in the second-floor hallway, you access the under-roof attic, useful as storage space. The interiors are in good condition and the property is move-in ready, with wooden fixtures and finishes that recall the rustic style of the original farmhouse.
Descrizione Esterni:
The property boasts highly practical external annexes. On the ground floor is a large garage of approximately 35 sqm, characterized by easy access, to which a functional cellar is connected, ideal for storing local products or as a storage area. Access to the apartment is via the external loggia, which offers a covered entrance typical of Tuscan rural architecture. There are no private green areas, but the residential context of Montallese offers ample space and ease of parking in the immediate vicinity.
Caratteristiche principali:
Living area: 130 sqm
Garage: 35 sqm
Total surface: approx. 165 sqm
Rooms: 8
Bedrooms: 4 (3 doubles, 1 single)
Bathrooms: 1 (windowed)
Condition: Good (move-in ready)
Entrance: Independent
Condo fees: None
Roof renovation year: 2005
Distanze:
Chiusi-Chianciano Railway Station: 7 km
A1 Motorway (Chiusi Exit): 10 km
Chiusi Historic Center: 8 km
Lake Chiusi: 5 km
Montepulciano: 18 km
Chianciano Terme: 15 km
Castiglione del Lago: 12 km
Siena: 85 km
Perugia: 50 km
Bagno Vignoni: 35 km
Ref.:A6380RA2537008A
Price:145,000 €
Type:Apartment / flat
Property size:160 sqm
Condition:Good
Rooms:8
Bedrooms:4
Bathrooms:1
Kitchen:Kitchenette
Garage:35 sqm
Energy class:G
EPI kwh/m2 anno:227,4
Garage
City:Chiusi
Locality:MONTALLESE
Province:Siena
Region:Tuscany
Country:Italy























