High-Efficiency Green Apartment with Photovoltaics for Sale in Cecina Mare
280,000 €
Ref.: A6224RA2502932A
Bedrooms
Bathrooms
Property size
Modern 85 sqm three-room property in a four-family house, 800 meters from the sea with cutting-edge green technology
For sale in Cecina (LI) fully renovated 85 sqm apartment. 2 double bedrooms, 6kW photovoltaic system with 10kW batteries, thermal insulation, and heat pumps. 800m from the sea in a quiet, well-served area.
General Description:
Located just 800 meters from the renowned beaches of Cecina Mare, in a strategic position easily connected to the coastline via a safe bike path, we offer for sale an exclusive apartment of approximately 85 sqm. The property, situated on the first floor of a recently energy-upgraded four-family building, is open on three sides, ensuring superior natural light and excellent ventilation. This property represents the excellence of modern living, combining proximity to the sea with the most advanced technologies for energy saving and indoor comfort, ideal for those seeking a move-in ready home designed for the future.
Interior Description:
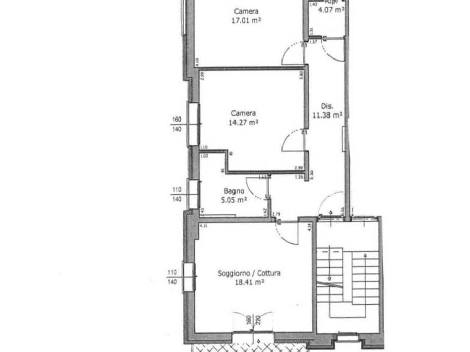
The home develops entirely on a single level with a modern and functional layout. The entrance opens onto a bright open-plan living area, where the open kitchen and living room create a convivial environment directly overlooking a private balcony. The sleeping area consists of two large double bedrooms, designed to offer maximum rest. The bathroom is windowed and equipped with contemporary finishes. Added value is provided by the technical/laundry room located at the end of the hallway, already complete with a water softener. The interiors are equipped with air exchangers with ceramic filters in every room, ensuring optimal air quality at all times.
Exterior Description:
The building, consisting of only four units, is in impeccable condition thanks to the recent facade renovation with thermal insulation. On the ground floor, the property has a small exclusive courtyard (resede), ideal as a safe shelter for bicycles and scooters—a fundamental accessory for enjoying the proximity to the sea without the stress of parking. The apartment's location allows for reaching downtown services and coastal pine forests in minutes, while remaining in a quiet and well-maintained residential context.
Main Features:
Surface area: 85 sqm
Rooms: 4
Bedrooms: 2 double
Bathrooms: 1 (windowed with dedicated laundry)
Floor: First (four-family house)
Condition: Renovated / Energy upgraded
Outdoor spaces: Balcony and ground floor courtyard
Heating/Cooling: Heat pumps and Fancoils
Kitchen: Induction hob (furniture optional)
Utility Details:
The property boasts a cutting-edge technological system that makes it nearly energy self-sufficient. It features a 6 kW/h photovoltaic system with 10 kW/h storage batteries, supported by thermal insulation and PVC window frames with electric shutters. The air conditioning system uses fancoils for hot and cold air, while air exchangers guarantee thermal efficiency and healthiness. The kitchen is powered exclusively by induction, eliminating the need for gas and drastically reducing utility costs.
Uses and Potential:
This proposal is the definitive solution as a primary residence for those wishing to reduce management costs and live in a healthy, technological environment. Given the proximity to the sea and the bike path, the property is also configured as a luxury holiday home or a high-yield investment, capturing the growing demand for superior quality tourist rentals that require air conditioning and modern standards. The possibility to purchase it furnished further facilitates immediate market entry or move-in.
Local Real Estate Market:
The Cecina Mare market is one of the most solid on the Etruscan Coast. While average prices for used properties stand at € 2,741 per square meter, properties fully renovated to high energy classes (A+) enjoy a value "premium" that can bring valuations between € 3,500 and € 3,800/sqm. Investing in a home with 6kW of photovoltaics and storage in Cecina today means securing an asset that will maintain its value over time, anticipating future European regulations on green homes and offering immediate marketability.
Tourist and Historical Information:
Cecina is a vibrant city that combines the Roman history of the San Vincenzino Park with the natural beauty of its coast. The Cecina Pine Forest, a biogenetic reserve of rare beauty, offers miles of green paths leading to the beach. Marina di Cecina, awarded the Blue Flag, is famous for its lively promenade and clean waters. The strategic proximity to Bolgheri and its world-famous vineyards makes this area the ideal starting point for excellent food and wine tours, combining the pleasure of the Tuscan sea with the culture of great wines.
Distances:
Marina di Cecina Beaches: 800 m
Cecina Center: 1.5 km
Bike path: 50 m
Bolgheri: 12 km
Livorno (Port): 35 km
Pisa Airport: 60 km
Florence: 110 km
Populonia and Baratti: 45 km
Ref.:A6224RA2502932A
Price:280,000 €
Type:Apartment / flat
Property size:85 sqm
Condition:Restored
Tot. floors:2
Rooms:4
Bedrooms:2
Bathrooms:1
Kitchen:Habitable
Heating:Independent
Energy class:A4
EPI kwh/m2 anno:>175
Furnished
Air conditioner
City:Cecina
Locality:MARINA CECINA
Province:Livorno
Region:Tuscany
Country:Italy



















