Spacious Apartment with Panoramic Terrace for Sale in Cecina Center
295,000 €
Ref.: A6224RA2415312A
Bedrooms
Bathrooms
Property size
Prestigious 140 sqm residence with 80 sqm terrace, three bedrooms, and walk-in closet in the heart of the city
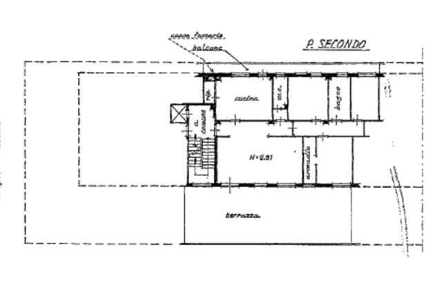
For sale in Cecina (LI) center, large 140 sqm apartment on the second floor with elevator. Double living room, 3 bedrooms, 2 bathrooms, and a monumental 80 sqm panoramic terrace. Recent systems, ideal for families or open-space lovers.
General Description:
In the vibrant heart of Cecina, in a strategic location that allows all services to be reached on foot, we offer for sale an impressive apartment of approximately 140 sqm located on the second floor of an elegant building served by an elevator. The property stands out for its extremely efficient internal space distribution and the extraordinary brightness guaranteed by large glass surfaces. A true rarity for the city center is the monumental panoramic terrace surrounding the house, offering an exceptional outdoor outlet that transforms the livability of the apartment, making it comparable to a prestigious penthouse.
Interior Description:
The entrance leads to a monumental living area, dominated by a double living room flooded with natural light, where large windows create a visual continuum with the exterior. The kitchen is eat-in and separate, integrated with a comfortable and functional dinette and equipped with direct access to a long service balcony. A bathroom with an anteroom completes the living area. The sleeping area, wisely separated to ensure maximum privacy, houses the master bedroom equipped with a generous walk-in closet, as well as two other versatile rooms, ideal as children's rooms or professional studios. A second main bathroom, equipped with both shower and tub, serves the sleeping department. The apartment features a recently implemented electrical system and autonomous methane heating.
Exterior Description:
The invaluable added value of this property is the stunning 80 sqm panoramic terrace. This space, extremely rare in the consolidated urban center, allows for setting up various outdoor living areas, solariums, and spaces for social dinners overlooking the city roofs. In addition to the main terrace, there is a long balcony accessible from the kitchen, ideal for daily household management. The building is dignified and well-maintained, equipped with a modern elevator system that removes any architectural barriers, ensuring convenient and safe access.
Main Features:
Internal surface: 140 sqm
Total rooms: 8
Bedrooms: 3 (including master with walk-in closet)
Bathrooms: 2
Floor: Second with elevator
Outdoor spaces: 80 sqm terrace and long balcony
Condition: To be renovated (Recent electrical and heating systems)
Heating: Autonomous methane
Kitchen: Eat-in with dinette
Location: Well-served city center
Utility Details:
Although the property requires aesthetic modernization, it boasts a solid technical base: the electrical system and the autonomous methane heating system have been recently redone and are up to code. This allows the investment to be focused on customizing finishes and coverings. Condominium fees are in line with the standards of prestigious downtown buildings with elevators.
Uses and Potential:
This property is the ultimate solution for a large family seeking the convenience of the center without giving up "villa-like" outdoor spaces. The generous square footage and the presence of the walk-in closet meet the most modern housing needs. From an investment perspective, the rarity of the 80 sqm terrace guarantees higher-than-average real estate value retention and very high capital gain potential after a targeted renovation, positioning the object in the urban luxury segment.
Local Real Estate Market:
The Cecina center market for large apartments is extremely solid. While average prices for standard used properties are around € 2,741 per square meter, properties with terraces larger than 50 sqm are considered "unique pieces" with valuations that can reach € 3,200 - € 3,500/sqm once renovated. Purchasing a 140 sqm property to modernize, but with already renewed systems, allows for acquiring a high-value asset at a competitive price, benefiting from post-intervention appreciation in an area where demand for prestigious apartments is constant.
Tourist and Historical Information:
Cecina is the strategic hub of the Etruscan Coast, a city that blends commercial dynamism and natural beauty. The property is located steps from the historic squares and shopping streets, but only 2 km from the magnificent Tombolo biogenetic Pine Forest, a 15 km nature reserve leading to Blue Flag beaches. The city's ancient history is evidenced by the San Vincenzino Archaeological Park, while the strategic position allows for reaching the famous Bolgheri vineyards and the medieval villages of the Cecina Valley in minutes. Living here means enjoying a temperate microclimate and the convenience of a modern center perfectly connected to Tuscan art cities.
Distances:
Marina di Cecina Beaches: 2.5 km
Train Station: 0.5 km
Tombolo Pine Forest: 2.2 km
Bolgheri: 12 km
Castiglioncello: 15 km
Livorno Port: 35 km
Pisa Airport: 60 km
Florence: 110 km
Volterra: 40 km
Ref.:A6224RA2415312A
Price:295,000 €
Type:Apartment / flat
Property size:140 sqm
Condition:To restore
Rooms:8
Bedrooms:3
Bathrooms:2
Kitchen:Habitable
Heating:Independent
Energy class:G
EPI kwh/m2 anno:380
Elevator/lift
Terrace
City:Cecina
Locality:CENTRO
Province:Livorno
Region:Tuscany
Country:Italy


















