Elegante Appartamento con Soppalco nel Cuore di Firenze – Via Tornabuoni pressi
420.000 €
Rif.: A8312RA2560002A
Camere
Bagni
Superficie
Raffinata residenza di 75 mq in palazzo signorile a pochi passi dal Duomo e dalla Stazione SMN
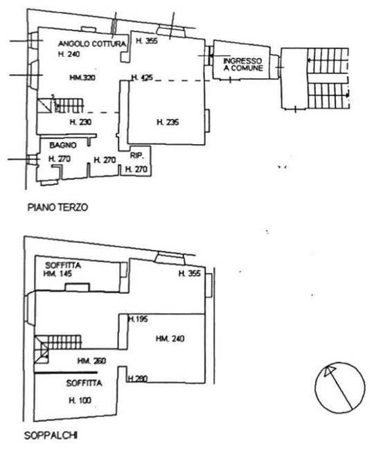
Vendesi a Firenze centro (zona Tornabuoni/Duomo) splendido appartamento di 75 mq in ottime condizioni. 3 vani, camera in soppalco, cucina abitabile, bagno finestrato e due soffitte. Climatizzato e arredato, ideale come investimento di lusso o residenza esclusiva.
Descrizione Generale:
In una delle cornici più prestigiose e ricercate del centro storico di Firenze, a brevissima distanza dalla maestosità del Duomo e dall'eleganza senza tempo di Via Tornabuoni, proponiamo in vendita un luminoso appartamento di circa 75 mq. L'immobile è inserito all'interno di un bel palazzo signorile e occupa il terzo piano, offrendo un'atmosfera ovattata e aristocratica. Caratterizzata da volumi armoniosi e da una posizione baricentrica rispetto ai principali monumenti e alla Stazione di Santa Maria Novella, questa proprietà rappresenta una soluzione d'eccellenza per chi desidera vivere l'essenza più autentica di Firenze o per chi cerca un asset immobiliare di altissimo profilo.
Descrizione Interni:
L’appartamento si presenta in ottime condizioni manutentive, con finiture che esaltano il carattere signorile della dimora. La zona giorno è composta da un ingresso funzionale che conduce a un ampio e luminoso living, ideale per il relax e la rappresentanza. La cucina è abitabile, spaziosa e perfettamente attrezzata. Attraverso un'elegante scala interna si accede al soppalco, dove è stata ricavata la camera matrimoniale, un ambiente intimo e riservato che gode della luce zenitale degli spazi sottostanti. Il bagno è completo e rigorosamente finestrato, garantendo un'aerazione ottimale. Gli interni vengono ceduti arredati, rendendo la casa pronta per essere abitata o messa a reddito.
Descrizione Esterni e Pertinenze:
L'immobile vanta pertinenze di straordinaria utilità nel contesto del centro storico: attraverso una comoda scala retrattile si accede a due soffitte calpestabili, perfette come ampi locali di sgombero o archivi privati. Sebbene l'edificio non sia attualmente dotato di ascensore, la struttura architettonica del palazzo ne permette l'installazione futura, un potenziale incremento di valore già valutato. La luminosità è garantita dall'altezza del piano e dall'orientamento delle aperture, che offrono scorci suggestivi sulle architetture circostanti.
Caratteristiche principali:
Superficie: 75 mq
Vani: 3
Camere da letto: 1 (in soppalco)
Bagni: 1 (finestrato)
Piano: Terzo (con possibilità di ascensore)
Pertinenze: Due soffitte calpestabili
Condizioni: Ottime
Riscaldamento: Autonomo
Comfort: Climatizzazione presente
Arredamento: Incluso
Posizione: Duomo / Via Tornabuoni
Dettagli sulle Utenze:
L'abitazione dispone di impianti autonomi e certificati. Il riscaldamento è termo-singolo a metano, integrato da un moderno impianto di condizionamento dell'aria che assicura il microclima ideale in ogni stagione. La gestione indipendente delle utenze e le spese condominiali calibrate sul prestigio del palazzo garantiscono un controllo ottimale dei costi fissi.
Usi e Potenzialità:
Questa proprietà è un'opportunità polivalente nel mercato del lusso. È la residenza principale ideale per chi lavora in centro o desidera un "pied-à-terre" di rappresentanza nella culla del Rinascimento. Allo stesso tempo, grazie all'ubicazione invidiabile a ridosso di Via Tornabuoni e del Duomo, l'appartamento si configura come un investimento immobiliare ad altissima redditività per le locazioni turistiche di pregio (Boutique Stay), essendo in grado di attrarre una clientela internazionale alla ricerca di standard elevati e comodità logistica.
Mercato Immobiliare Locale:
L'area compresa tra il Duomo e Via Tornabuoni rappresenta il "Miglio d'Oro" di Firenze, una zona dove il mercato immobiliare non conosce flessioni. Mentre i prezzi medi per l'usato standard nel centro si attestano sui € 5.200 al metro quadro, le proprietà in palazzi signorili con caratteristiche uniche (soppalchi, soffitte, possibilità di ascensore) raggiungono quotazioni nel segmento premium, posizionandosi tra i € 6.500 e i € 8.500/mq. Investire qui significa puntare sulla massima stabilità del capitale e su una domanda di locazione costante tutto l'anno.
Informazioni Turistiche e Storiche:
Vivere in questa zona significa avere la storia del mondo sotto casa. Via Tornabuoni è la strada della moda e del lusso per eccellenza, sede di Palazzo Strozzi e delle boutique più famose. A soli due minuti a piedi si raggiunge Piazza del Duomo, con la Cupola del Brunelleschi e il Campanile di Giotto, mentre in direzione opposta si arriva rapidamente in Piazza della Signoria e agli Uffizi. La vicinanza alla Stazione di Santa Maria Novella (5 minuti a piedi) rende gli spostamenti regionali e nazionali estremamente agevoli. Soggiornare qui permette di immergersi quotidianamente nella cultura fiorentina, tra caffè storici, musei di fama mondiale e l'atmosfera vibrante delle vie dello shopping più eleganti d'Europa.
Distanze:
Piazza del Duomo: 300 m
Via Tornabuoni: 150 m
Stazione Santa Maria Novella: 500 m
Palazzo Strozzi: 200 m
Piazza della Signoria: 600 m
Aeroporto di Firenze: 7 km
Rif.:A8312RA2560002A
Prezzo:420.000 €
Tipologia:Appartamento
Superficie:75 m²
Condizioni:Ottime
Piani tot.:4
Vani:3
Camere:1
Bagni:1
Cucina:Abitabile
Riscaldamento:Autonomo
Classe energetica:G
EPI kwh/m2 anno:>175
Arredato
Condizionatore
Comune:Firenze
Località:DUOMO
Provincia:Firenze
Regione:Toscana
Stato:Italia

























