Appartamento in vendita a Firenze (Firenze)
440.000 €
Rif.: A8312RA2546552A
Camere
Bagni
Superficie
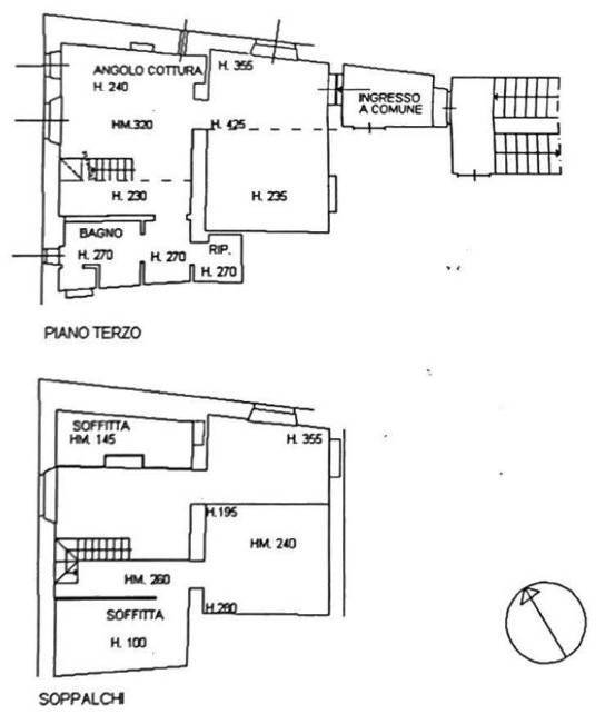
Firenze - Duomo - Via Tornabuoni pressi - proponiamo in vendita luminoso appartamento posto al terzo piano senza ascensore, ma con la possibilità di installarlo, in bel palazzo signorile.
L'appartamento è composto da ingresso, living, bagno finestrato, cucina abitabile e tramite scale interne si accede al soppalco dove troviamo la camera matrimoniale.
Completa la proprietà due soffitte calpestabili con accesso dall'appartamento con comoda scala retrattile.
Immobile molto luminoso ed elegante, ideale sia per viverci che per investimento visto l'ubicazione a due passi dal Duomo, da Via Tornabuoni e dalla Stazione di Santa Maria Novella.
Prezzo trattabile Classe Energetica: G
Rif.:A8312RA2546552A
Prezzo:440.000 €
Tipologia:Appartamento
Superficie:75 m²
Condizioni:Ottime
Piani tot.:4
Vani:3
Camere:1
Bagni:1
Cucina:Abitabile
Riscaldamento:Autonomo
Classe energetica:G
EPI kwh/m2 anno:>175
Arredato
Ascensore
Condizionatore
Comune:Firenze
Località:DUOMO
Provincia:Firenze
Regione:Toscana
Stato:Italia

























