Appartamento in vendita a Firenze (Firenze)
870.000 €
Rif.: A8312RA2546550A
Camere
Bagni
Superficie
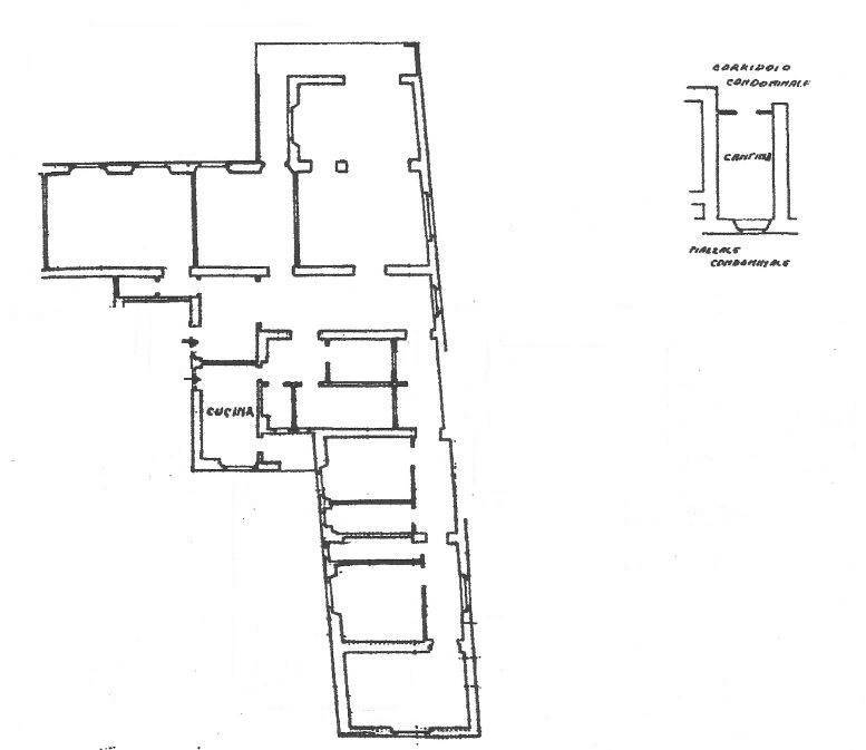
FIRENZE - COMUNALE - VIA SOLFERINO PRESSI - IN BELLISSIMA VIA RESIDENZIALE, PROPONIAMO IN VENDITA LUMINOSO APPARTAMENTO DI AMPIA METRATURA POSTO AL QUARTO PIANO CON ASCENSORE.
L'IMMOBILE E' COSI COMPOSTO: GRANDE INGRESSO, SALONE TRIPLO, CUCINA ABITABILE, DUE CAMERE MATRIMONIALI (POSSIBILITA' TERZA CAMERA), DOPPI SERVIZI.
L'IMMOBILESI PRESENTA IN OTTIME CONDIZIONI, CON ARIA CONDIZIONATA E DI UN BEL BALCONE PANORAMICO SULLE COLLINE.
PER QUALSIASI INFORMAZIONI IN PI§ O FISSARE UNA VISITA CONTATTARE L'AGENZIA Classe Energetica: G
Rif.:A8312RA2546550A
Prezzo:870.000 €
Tipologia:Appartamento
Superficie:232 m²
Condizioni:Ottime
Piani tot.:5
Vani:5
Camere:2
Bagni:2
Cucina:Abitabile
Riscaldamento:Centralizzato
Classe energetica:G
EPI kwh/m2 anno:>175
Ascensore
Condizionatore
Terrazzo
Comune:Firenze
Località:COMUNALE
Provincia:Firenze
Regione:Toscana
Stato:Italia




















