Villetta Indipendente in Vendita a Torrita di Siena
165.000 €
Rif.: A6380RV796848A
Camere
Superficie
Spaziosa Villetta con Giardino e Terreno Agricolo Opzionale
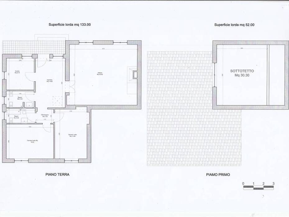
Villetta indipendente in vendita a Torrita di Siena, con 133 mq di superficie abitabile, mansarda di 52 mq e giardino di 1000 mq. Include garage e pozzo artesiano. Possibilità di acquistare ulteriori 1300 mq di terreno agricolo.
Descrizione Generale:
Immersa nelle colline tra Torrita di Siena e Montefollonico, questa affascinante villetta indipendente offre un rifugio tranquillo e immerso nella natura. La proprietà si estende su un ampio giardino di 1000 mq, dotato di un pozzo artesiano. La villetta è ben curata e offre comfort in una posizione serena, ma vicino ai servizi locali.
Descrizione Interni:
La villetta si sviluppa su 133 mq e presenta un ampio salone con camino, cucina separata e un bagno al piano terra. Al primo piano si trovano due camere da letto e due ulteriori bagni. La mansarda di 52 mq offre spazio extra per vari usi, come uno studio o ripostiglio. La disposizione garantisce ampi spazi per una famiglia, offrendo un ambiente accogliente e confortevole.
Descrizione Esterni:
La proprietà include un grande giardino, ideale per attività all'aperto e riunioni. Il giardino dispone di un pozzo artesiano, che è utile per l'irrigazione e la cura del paesaggio. È presente anche un garage per il parcheggio sicuro. L'area circostante è ben curata, offrendo un ambiente tranquillo con splendide viste sulla campagna.
Dettagli sulle Utenze:
La villetta è dotata di impianti standard, inclusi i sistemi di riscaldamento e l'approvvigionamento idrico. La presenza del pozzo artesiano garantisce una fonte d'acqua affidabile per il giardino e altre necessità.
Usi e Potenzialità:
Questa villetta è ideale come abitazione principale o casa per le vacanze, offrendo un mix di comfort e fascino rurale. Il terreno agricolo di ulteriori 1300 mq, acquistabile separatamente, offre opportunità per espandere la proprietà o intraprendere attività agricole.
Mercato Immobiliare Locale:
Il mercato immobiliare di Torrita di Siena offre una gamma di tipologie di immobili, con prezzi generalmente compresi tra 1.500 e 2.500 € al metro quadro, a seconda della posizione e delle caratteristiche. L'area è nota per i suoi paesaggi pittoreschi e la sua importanza storica.
Informazioni Turistiche e Storiche:
Torrita di Siena è famosa per la sua bellezza scenica e i siti storici. Tra le attrazioni principali ci sono le antiche mura cittadine, le chiese storiche e il centro storico caratterizzato dall'architettura tradizionale toscana. L'area è anche vicina a Montefollonico, nota per le sue strutture medievali e la produzione di vino.
Distanze:
Centro di Torrita di Siena: 5 km
Montefollonico: 7 km
Siena: 30 km
Pienza: 20 km
Montalcino: 25 km
Arezzo: 40 km
Firenze: 90 km
Stazione Ferroviaria di Chiusi: 15 km
Val d’Orcia: 15 km
Aeroporto di Firenze: 85 km
Rif.:A6380RV796848A
Prezzo:165.000 €
Tipologia:Casa singola / indipendente
Superficie:133 m²
Condizioni:Da ristrutturare
Vani:1
Camere:2
Cucina:Abitabile
Riscaldamento:Autonomo
Classe energetica:G
EPI kwh/m2 anno:>175
Comune:Torrita di Siena
Località:-
Provincia:Siena
Regione:Toscana
Stato:Italia

















