Nuovi Quadrilocali in Vendita a Cecina
269.000 €
Rif.: A6224RA2465902A
Camere
Bagni
Superficie
Moderni appartamenti di 95 mq in Classe A2 con tre camere, terrazza abitabile e posto auto
Vendesi a Cecina (LI) quadrilocali di nuova costruzione (95 mq) a partire da € 269.000. Classe A2, 3 camere, 2 bagni, terrazza e posto auto. Soluzione moderna e luminosa in zona residenziale servita, ideale come prima casa.
Descrizione Generale:
In una zona residenziale tranquilla e strategicamente ben collegata di Cecina, proponiamo in vendita un'esclusiva selezione di quadrilocali di nuova costruzione. Gli immobili sono inseriti in un elegante complesso condominiale di moderna concezione, progettato per coniugare estetica contemporanea e massima efficienza energetica. Situati al primo e al secondo piano, questi appartamenti rappresentano una soluzione abitativa d'eccellenza per chi cerca una casa nuova, luminosa e dotata di tutti i comfort tecnologici attuali. Con prezzi a partire da € 269.000, la proposta si configura come un'opportunità imperdibile nel panorama immobiliare della Costa degli Etruschi, ideale sia per nuclei familiari che per investitori lungimiranti.
Descrizione Interni:
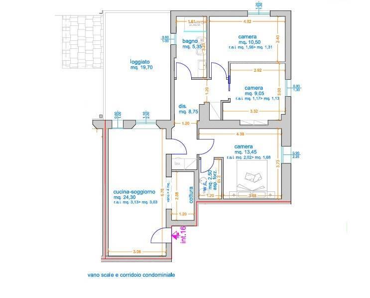
Gli appartamenti si estendono su una superficie di circa 95 mq, con una distribuzione degli spazi interni razionale e funzionale. Il cuore della casa è rappresentato da una zona giorno open space inondata di luce, dove l'angolo cottura si integra armoniosamente con il soggiorno, creando un ambiente conviviale con accesso diretto alla terrazza abitabile. Il reparto notte, ben separato, ospita tre camere da letto di generose dimensioni, capaci di soddisfare le esigenze di una famiglia numerosa o di chi necessita di una stanza adibita a studio. La proprietà dispone di due bagni rifiniti con materiali di qualità: uno principale finestrato e un secondo bagno di servizio cieco, ottimamente organizzato. Gli interni sono realizzati secondo i più moderni standard, garantendo un isolamento termo-acustico di alto livello.
Descrizione Esterni:
L’estetica del complesso riflette un gusto sobrio e moderno, con facciate curate e spazi comuni ben rifiniti. Ogni appartamento gode di una terrazza abitabile, un vero e proprio sfogo esterno ideale per pranzi all'aperto o momenti di relax. La proprietà è completata da un posto auto privato esclusivo, accessorio fondamentale che garantisce comodità e sicurezza. L'edificio è dotato di un ascensore di ultima generazione che serve tutti i piani, eliminando ogni barriera architettonica. Le aree verdi condominiali contribuiscono a creare un'atmosfera serena e decorosa, integrando perfettamente la struttura nel contesto residenziale circostante.
Caratteristiche principali:
Superficie interna: 95 mq
Vani totali: 4
Camere da letto: 3
Bagni: 2 (uno finestrato, uno cieco)
Piano: Primo o Secondo
Classe Energetica: A2
Riscaldamento: Autonomo
Prezzo: A partire da € 269.000
Pertinenze: Posto auto privato e Terrazza abitabile
Condizioni: Nuova costruzione
Accessibilità: Ascensore presente
Dettagli sulle Utenze:
Trattandosi di una nuova costruzione in classe A2, gli appartamenti vantano impianti all'avanguardia per il risparmio energetico. Il sistema di riscaldamento termoautonomo, unito alla qualità degli infissi e dell'isolamento perimetrale, garantisce costi di gestione estremamente contenuti e un impatto ambientale ridotto. Ogni unità è predisposta per l'installazione di sistemi di climatizzazione e per le moderne tecnologie di connessione dati, assicurando una casa pronta per le sfide della transizione energetica.
Usi e Potenzialità:
Questa proposta è la soluzione definitiva come residenza principale per una famiglia che desidera vivere in un ambiente moderno, sicuro e a basso consumo. La metratura generosa con tre camere e la presenza del posto auto la rendono estremamente funzionale alla vita quotidiana. Allo stesso tempo, l'alto standard qualitativo e la posizione a Cecina rendono l'immobile un investimento sicuro, capace di mantenere il valore nel tempo e di essere inserito con successo nel mercato delle locazioni di alto profilo o come prestigiosa casa vacanza vicina al mare.
Mercato Immobiliare Locale:
Il mercato di Cecina è tra i più solidi della provincia di Livorno, con prezzi medi per l'usato intorno ai € 2.741 al metro quadro. Tuttavia, la domanda per le nuove costruzioni in classe energetica elevata (A2 o superiore) è in costante crescita a causa della scarsità di offerta. In zone residenziali servite, i prezzi per il nuovo oscillano mediamente tra i € 3.200 e i € 3.800/mq. Proporre quadrilocali di 95 mq a partire da € 269.000 (circa € 2.830/mq) rappresenta un rapporto qualità-prezzo eccezionale per una nuova costruzione, posizionando questa offerta come una delle più competitive e interessanti attualmente disponibili sul mercato locale.
Informazioni Turistiche e Storiche:
Cecina è un baricentro strategico della Toscana costiera, capace di offrire un connubio perfetto tra la vita cittadina dinamica e la bellezza della natura. La città è celebre per la sua magnifica Pineta biogenetica, una riserva naturale di 15 km ideale per il trekking e il cicloturismo, e per le spiagge di Marina di Cecina, costantemente premiate con la Bandiera Blu. La storia antica affiora nel Parco Archeologico di San Vincenzino, con i resti di una lussuosa villa romana. Grazie alla sua posizione centrale, Cecina è la porta d'accesso per i famosi vigneti di Bolgheri e i borghi medievali dell'entroterra, offrendo un'esperienza toscana autentica fatta di mare, cultura e alta enogastronomia.
Distanze:
Centro di Cecina: 0.8 km
Spiagge di Marina di Cecina: 2.5 km
Bolgheri (Viale dei Cipressi): 12 km
Livorno (Porto): 35 km
Aeroporto di Pisa: 60 km
Firenze: 110 km
San Vincenzo: 25 km
Volterra: 40 km
Castiglioncello: 15 km
Rif.:A6224RA2465902A
Prezzo:269.000 €
Tipologia:Nuova costruzione
Superficie:95 m²
Condizioni:Nuova costruzione
Piani tot.:3
Vani:4
Camere:3
Bagni:2
Cucina:Abitabile
Riscaldamento:Autonomo
Classe energetica:A2
EPI kwh/m2 anno:>175
Ascensore
Comune:Cecina
Località:PALAZZACCIO
Provincia:Livorno
Regione:Toscana
Stato:Italia










