Grazioso Bilocale in Vendita nel Centro di Cecina
115.000 €
Rif.: A6224RA2464145A
Camere
Bagni
Superficie
Confortevole appartamento di 40 mq all'ultimo piano, ideale come investimento o per giovani coppie
Vendesi a Cecina (LI) bilocale di 40 mq in pieno centro. Camera matrimoniale, cucina abitabile, bagno e riscaldamento autonomo. Buone condizioni, secondo e ultimo piano vicino a tutti i servizi. Ottimo investimento.
Descrizione Generale:
Nel cuore pulsante di Cecina, in una posizione strategica che permette di vivere appieno la comodità del centro cittadino, proponiamo in vendita un grazioso appartamento bilocale di circa 40 mq (37 mq calpestabili). L'immobile è situato al secondo e ultimo piano di un tipico edificio civile, garantendo una piacevole riservatezza e l'assenza di vicini al piano superiore. Questa soluzione abitativa rappresenta l'opportunità ideale per chi cerca una base funzionale a pochi passi da negozi, uffici e trasporti, o per chi desidera realizzare un investimento immobiliare sicuro in una delle città più dinamiche del litorale toscano.
Descrizione Interni:
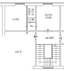
L'appartamento si distingue per una distribuzione degli spazi interna razionale e accogliente. L'ingresso introduce direttamente alla cucina abitabile, un ambiente spazioso e ben organizzato, perfetto per momenti conviviali. La zona notte è composta da una camera matrimoniale luminosa e di buone dimensioni, capace di ospitare agevolmente ogni complemento d'arredo. Completa la proprietà un bagno funzionale e ben disposto. Gli interni si presentano in buone condizioni manutentive, con finiture sobrie che permettono un utilizzo immediato senza necessità di interventi urgenti. L'altezza dell'ultimo piano favorisce una buona luminosità naturale in tutti gli ambienti.
Descrizione Esterni:
L'immobile è inserito in un contesto condominiale ben curato e decoroso. La facciata e l'ingresso comune riflettono la cura dell'edificio, contribuendo a creare un ambiente piacevole fin dall'accesso. Pur essendo situato in centro, la posizione all'ultimo piano offre un distacco dal rumore stradale. La vicinanza immediata a parcheggi pubblici e alle principali aree pedonali rende la logistica quotidiana estremamente semplice. In pochi minuti a piedi si raggiungono la piazza principale, la stazione ferroviaria e tutti i servizi essenziali del Comune.
Caratteristiche principali:
Superficie commerciale: 40 mq
Superficie calpestabile: 37 mq
Vani: 2
Camere da letto: 1 matrimoniale
Bagni: 1
Piano: Secondo e ultimo (senza ascensore)
Condizioni: Buone / Abitabile
Riscaldamento: Autonomo a metano
Cucina: Abitabile
Ubicazione: Centro città
Dettagli sulle Utenze:
L'abitazione vanta un impianto di riscaldamento termoautonomo a metano, garantendo una gestione dei consumi efficiente e indipendente in ogni stagione. Tutte le utenze (acqua, luce e gas) sono regolarmente allacciate alla rete pubblica e rispondenti alle normative vigenti. Gli infissi e lo stato generale degli impianti assicurano un comfort abitativo adeguato agli standard moderni per un immobile di questa tipologia.
Usi e Potenzialità:
Questa proposta è una soluzione d'eccellenza per diverse finalità. Rappresenta la prima casa ideale per un single o una giovane coppia alla ricerca di indipendenza in una zona servitissima. Allo stesso tempo, si configura come un investimento immobiliare ad alta redditività: i tagli piccoli nel centro di Cecina godono di una domanda altissima sia per locazioni residenziali a lungo termine che per affitti transitori legati a lavoratori o turisti, garantendo un rendimento annuo costante e una facile ricollocazione sul mercato.
Mercato Immobiliare Locale:
Cecina centro è un mercato solido e caratterizzato da una forte liquidità. I prezzi medi per gli appartamenti si attestano intorno ai € 2.741 al metro quadro. Tuttavia, i bilocali in buone condizioni situati all'ultimo piano godono di un valore aggiunto dovuto alla scarsità di offerta rispetto alla domanda, mantenendo quotazioni stabili anche in scenari economici variabili. Acquistare un immobile di questa metratura nel centro di Cecina significa assicurarsi un asset patrimoniale resiliente, capace di mantenere il proprio valore nel tempo grazie alla posizione centrale "evergreen".
Informazioni Turistiche e Storiche:
Cecina è una città vibrante che funge da baricentro della Costa degli Etruschi. Oltre ad essere un centro commerciale naturale di eccellenza, vanta una forte vocazione turistica grazie alle spiagge Bandiera Blu di Marina di Cecina e alla magnifica Pineta biogenetica che offre chilometri di percorsi nel verde. Storicamente importante fin dall'epoca romana (come testimoniato dalla Villa di San Vincenzino), Cecina è oggi la porta d'accesso alle colline di Bolgheri e alla Strada del Vino, combinando servizi moderni, sport nautici e una tradizione enogastronomica di primo livello.
Distanze:
Centro Storico / Piazza: 50 m
Stazione Ferroviaria: 500 m
Spiagge di Marina di Cecina: 3 km
Bolgheri: 12 km
Livorno (Porto): 35 km
Pisa (Aeroporto): 60 km
Firenze: 110 km
San Vincenzo: 25 km
Rif.:A6224RA2464145A
Prezzo:115.000 €
Tipologia:Appartamento
Superficie:40 m²
Condizioni:Buone
Vani:2
Camere:1
Bagni:1
Cucina:Abitabile
Riscaldamento:Autonomo
Classe energetica:G
EPI kwh/m2 anno:160
Comune:Cecina
Località:CENTRO
Provincia:Livorno
Regione:Toscana
Stato:Italia











