Appartamento ristrutturato con vista panoramica in vendita nel centro storico di Monteleone d’Orvieto
145.000 €
Rif.: A5153RA2507393A
Camere
Bagni
Superficie
Abitazione al piano terra con ingresso indipendente, camino e finiture tipiche umbre
Appartamento ristrutturato di 80 mq in vendita a Monteleone d’Orvieto, nel cuore del centro storico. Piano terra con ingresso indipendente, camino, 2 camere, bagno e vista panoramica sulla campagna.
Descrizione Generale
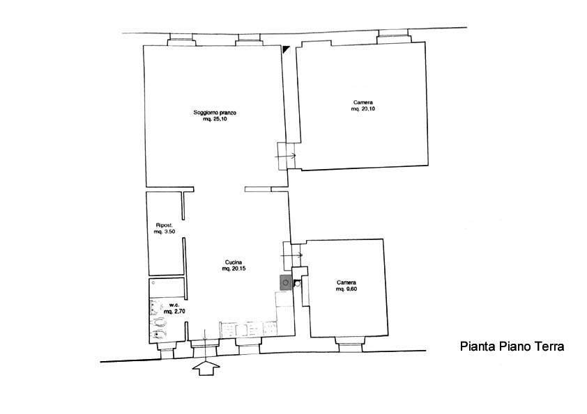
Nel cuore del centro storico di Monteleone d’Orvieto, caratteristico borgo medievale umbro, proponiamo in vendita un appartamento di 80 mq completamente ristrutturato con gusto e attenzione ai dettagli.
L’immobile è situato al piano terra con ingresso indipendente, in posizione privilegiata lungo la via principale del borgo, e offre un’atmosfera autentica e accogliente con splendida vista panoramica sulla campagna circostante.
Descrizione Interni
Tutto su un unico livello, l’appartamento si apre su un ampio open space con cucina a vista e spazioso soggiorno-pranzo dotato di camino, ideale per creare un ambiente caldo e conviviale.
La zona notte comprende una camera matrimoniale, una cameretta e un bagno finestrato. È presente anche un ripostiglio/lavanderia, pratico e funzionale.
L’abitazione si distingue per le finiture tipiche umbre: pavimenti in cotto industriale, soffitti con piccole volte intonacate e finestre con doppi vetri (quelle affacciate sulla strada sono dotate di inferriate in ferro battuto).
Descrizione Esterni
Pur trovandosi in pieno centro storico, l’appartamento regala una meravigliosa vista sulla vallata e la campagna circostante, perfetta per ammirare il paesaggio umbro in ogni stagione.
Caratteristiche principali:
Superficie abitabile: 80 mq
Camere da letto: 2
Bagni: 1
Camino: Sì
Ripostiglio/lavanderia: Sì
Vista panoramica: Sì
Pavimenti in cotto
Soffitti con volte intonacate
Riscaldamento autonomo a metano
Inferriate in ferro battuto sulle finestre lato strada
Parzialmente arredato
Dettagli sulle Utenze
L’appartamento è dotato di riscaldamento autonomo a metano, che garantisce comfort e praticità in ogni stagione.
Usi e Potenzialità
Grazie alla posizione centrale e al fascino degli interni, l’immobile è ideale sia come residenza principale per chi desidera vivere in un contesto storico sia come casa vacanze o investimento turistico, data la vicinanza ai principali borghi umbri e toscani.
Mercato Immobiliare Locale
A Monteleone d’Orvieto, il mercato immobiliare per appartamenti ristrutturati nel centro storico registra prezzi medi compresi tra 1.100 e 1.450 €/m², con una crescente richiesta da parte di acquirenti italiani e stranieri attratti dal fascino dei borghi umbri e dalla posizione strategica vicino al confine toscano.
Informazioni Turistiche e Storiche
Monteleone d’Orvieto è un suggestivo borgo medievale situato a pochi chilometri dal confine con la Toscana, famoso per il centro storico ben conservato, la Chiesa di San Giovanni Battista e i vicoli panoramici che regalano scorci unici sulla campagna circostante.
La sua posizione lo rende punto di partenza ideale per visitare Città della Pieve, Orvieto, Chiusi, Cetona e le rinomate località termali umbre e toscane.
Distanze
Città della Pieve: 8 km
Chiusi (stazione ferroviaria): 12 km
Cetona: 15 km
Orvieto: 28 km
Lago Trasimeno: 30 km
Montepulciano: 32 km
Perugia: 48 km
Aeroporto di Perugia: 55 km
Aeroporto di Firenze: 130 km
Autostrada A1 (uscita Fabro): 7 km
Rif.:A5153RA2507393A
Prezzo:145.000 €
Tipologia:Appartamento
Superficie:80 m²
Condizioni:Ottime
Vani:5
Camere:2
Bagni:1
Cucina:Abitabile
Riscaldamento:Autonomo
Classe energetica:G
EPI kwh/m2 anno:>175
Arredato
Comune:Monteleone d'Orvieto
Località:-
Provincia:Terni
Regione:Umbria
Stato:Italia























