Elegante Appartamento su due Livelli con Giardino e Terrazza ad Agliana
265.000 €
Rif.: A4948RA2556967A
Camere
Bagni
Superficie
Luminoso quadrilocale di 90 mq in ottime condizioni con spazi esterni esclusivi in posizione servita
Vendesi ad Agliana (PT) splendido appartamento di 90 mq disposto su due livelli. 2 camere, 2 bagni, giardino privato e grande terrazza abitabile. Ottime condizioni, termoautonomo, in zona strategica e silenziosa. Ideale per coppie o piccoli nuclei familiari.
Descrizione Generale:
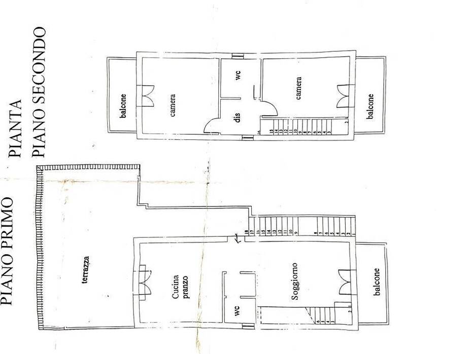
Nel comune di Agliana, in una posizione strategica e perfettamente servita tra le province di Pistoia e Prato, proponiamo in vendita un accogliente appartamento di circa 90 mq distribuito armoniosamente su due livelli. L'immobile si distingue per l'eccezionale vivibilità garantita dalla presenza di un giardino riservato al piano terra e di una spaziosa terrazza abitabile al primo piano. Mantenuto in ottime condizioni e caratterizzato da ambienti luminosi e funzionali, questo appartamento rappresenta la soluzione ideale per chi cerca un contesto moderno e indipendente, senza rinunciare alla comodità dei servizi cittadini e alla vicinanza ai principali collegamenti autostradali.
Descrizione Interni:
L'abitazione vanta una distribuzione degli spazi intelligente che separa nettamente la zona giorno dalla zona notte, garantendo massima privacy:
Primo Piano: Accoglie la zona giorno, composta da un soggiorno spazioso e una cucina abitabile. Il valore aggiunto di questo livello è l'accesso diretto alla grande terrazza, un ambiente versatile che si presta a diventare un angolo di svago e relax. È inoltre presente un bagno di servizio funzionale al piano.
Secondo Piano: Dedicato interamente al riposo, ospita due camere da letto ben proporzionate e un secondo bagno completo.
Gli interni riflettono una cura attenta per le finiture, offrendo un'atmosfera calda e pronta per essere abitata immediatamente senza necessità di interventi.
Descrizione Esterni:
La proprietà è valorizzata da due preziosi sfoghi all'aperto. Al piano terra si trova un delizioso giardino/resede privato e riservato, ideale per chi possiede animali domestici o per gli amanti del verde che desiderano un angolo di quiete sotto casa. Al primo piano, la spaziosa terrazza amplia notevolmente la superficie conviviale, offrendo il set perfetto per pranzi all'aperto o zone solarium private. La palazzina si inserisce in un contesto residenziale decoroso e tranquillo, caratterizzato da facilità di accesso.
Caratteristiche principali:
Superficie: 90 mq
Vani: 4
Camere da letto: 2
Bagni: 2
Piano: Primo e Secondo (su due livelli)
Giardino: Privato al piano terra
Terrazzo: Grande terrazza abitabile al primo piano
Condizioni: Ottime
Riscaldamento: Autonomo
Ubicazione: Agliana (PT)
Dettagli sulle Utenze:
L'immobile è dotato di impianti autonomi e certificati. Il sistema di riscaldamento termo-singolo a metano assicura una gestione dei consumi efficiente e indipendente. Grazie alla doppia esposizione e alla posizione alta dell'edificio, l'appartamento gode di un'ottima ventilazione naturale e di una luminosità costante durante tutto l'arco della giornata.
Usi e Potenzialità:
Questa proposta è la scelta d'elezione come residenza principale per una giovane coppia o un piccolo nucleo familiare che cerca un'abitazione "chiavi in mano" con spazi esterni vivibili. La versatilità della terrazza e del giardino, unita alla posizione centrale ad Agliana, rende l'immobile estremamente appetibile anche come investimento immobiliare, garantendo una commerciabilità immediata e una facilità di locazione superiore alla media del mercato locale.
Mercato Immobiliare Locale:
Agliana si conferma uno dei poli residenziali più solidi della piana pistoiese. Mentre i prezzi medi per l'usato standard nel comune si attestano tra i € 1.900 e i € 2.100 al metro quadro, le tipologie distribuite su due livelli e dotate di doppia pertinenza esterna (giardino + terrazza) mantengono quotazioni premium, posizionandosi verso la fascia alta del mercato locale. Investire in un quadrilocale di 90 mq in ottime condizioni ad Agliana assicura una protezione del capitale dall'inflazione e una rivalutazione costante nel tempo, data la scarsità di soluzioni indipendenti con queste specifiche.
Informazioni Turistiche e Storiche:
Agliana è una cittadina operosa situata strategicamente nella piana pistoiese, storicamente legata alla produzione agricola e oggi cuore di un distretto vivaistico e artigianale di rilevanza europea. Il territorio ha saputo trasformare la sua vocazione rurale in una dinamica realtà commerciale, pur conservando testimonianze storiche e un sistema di parchi urbani, come il Parco di Pertini, molto amati dai residenti. Vivere in quest'area significa essere immersi nella tradizione toscana del "buen vivere", dove la modernità delle infrastrutture convive con la vicinanza a Pistoia, Capitale della Cultura 2017, celebre per il suo centro medievale e la monumentale Piazza Duomo. La rapidità con cui è possibile raggiungere il centro di Firenze o di Prato rende Agliana la base logistica perfetta per chi desidera godere dell'arte e della cultura toscana restando in un contesto sereno e a misura d'uomo.
Distanze:
Centro di Agliana: 1 km
Prato (Centro): 8 km
Pistoia (Centro): 10 km
Firenze (Centro): 25 km
Aeroporto di Firenze: 20 km
Svincolo Autostradale A11: 4 km
Montecatini Terme: 22 km
Rif.:A4948RA2556967A
Prezzo:265.000 €
Tipologia:Appartamento
Superficie:90 m²
Condizioni:Ottime
Piani tot.:2
Vani:4
Camere:2
Bagni:2
Cucina:Abitabile
Riscaldamento:Autonomo
Giardino:50 m²
Classe energetica:G
EPI kwh/m2 anno:>175
Terrazzo
Giardino
Comune:Agliana
Località:SAN NICCOLÒ
Provincia:Pistoia
Regione:Toscana
Stato:Italia
















