Appartamento da ristrutturare in vendita a Castagneto Carducci nel borgo storico
80.000 €
Rif.: A3165RA2501396A
Camere
Bagni
Superficie
Ampia casa d’epoca di circa 98 mq con due camere e posto auto interno, nel cuore di Castagneto Carducci
Appartamento in vendita nel centro storico di Castagneto Carducci, Livorno. Circa 98 mq da ristrutturare con due camere, quattro vani e posto auto in corte privata. Ideale come residenza nel borgo o investimento turistico vicino a Bolgheri e alle spiagge della Costa degli Etruschi.
Descrizione Generale:
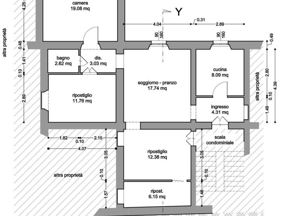
Nel centro storico di Castagneto Carducci, dentro un antico palazzo del borgo, proponiamo un appartamento di circa 98 mq posto al primo piano, interamente da ristrutturare. La posizione è una delle più ricercate della zona: tutto si raggiunge a piedi, dai negozi ai ristoranti, fino alle enoteche legate al mondo dei vini di Bolgheri. L’immobile è servito da una corte interna dove è possibile parcheggiare, un dettaglio raro e molto prezioso in un paese collinare medievale. La casa conserva il fascino delle abitazioni storiche toscane e offre spazi generosi da ripensare secondo le proprie esigenze, con la libertà di creare ambienti moderni mantenendo carattere e autenticità.
Descrizione Interni:
L’appartamento è composto da quattro vani principali, due ripostigli e un bagno. Le metrature permettono una riorganizzazione efficace degli spazi: l’attuale distribuzione si presta a realizzare una zona giorno ampia con cucina abitabile separata o integrata, due camere comode e servizi più contemporanei. La ristrutturazione totale consente di valorizzare i volumi, recuperare eventuali elementi originali e migliorare comfort ed efficienza, portando la casa allo standard richiesto sia da chi cerca una residenza stabile, sia da chi punta su un uso turistico di qualità.
Descrizione Esterni:
La proprietà non dispone di spazi esterni privati abitabili, ma beneficia della corte condominiale che consente il posto auto. Vivere nel borgo significa avere a pochi passi piazzette, scorci panoramici e passeggiate tra vicoli in pietra, oltre alla campagna e ai filari di cipressi che caratterizzano l’entroterra fino a Bolgheri.
Caratteristiche principali:
Superficie abitabile: circa 98 mq
Vani totali: 4
Camere da letto: 2
Bagni: 1
Piano: primo
Condizioni: da ristrutturare
Posto auto in corte interna
Contesto: antico palazzo nel centro storico
Riscaldamento: inesistente (da realizzare in sede di ristrutturazione)
Cucina: abitabile
Dettagli sulle Utenze:
L’immobile richiede un ripristino completo degli impianti. La ristrutturazione offre l’occasione di installare un sistema di riscaldamento e raffrescamento moderno, migliorare l’efficienza energetica e adeguare impianto elettrico e idraulico alle normative attuali, con un deciso salto di qualità sul piano del comfort e dei consumi.
Usi e Potenzialità:
Questa soluzione è perfetta per chi sogna una casa nel borgo autentico di Castagneto Carducci, con la possibilità di modellare gli ambienti su misura. L’ampiezza e la posizione nel centro storico la rendono molto interessante anche come investimento: case ristrutturate in questa zona sono richieste da una clientela italiana e internazionale che cerca atmosfera toscana, vicinanza alle cantine di Bolgheri e accesso rapido al mare. Il posto auto interno, rarissimo in paese, aumenta ulteriormente l’attrattiva sia per uso privato sia per locazioni turistiche.
Mercato Immobiliare Locale:
Castagneto Carducci è uno dei comuni più ambiti della Costa degli Etruschi perché unisce borgo collinare, campagna del vino e mare. Il mercato riflette questa doppia anima: le quotazioni più alte si registrano nelle aree costiere e a Marina di Castagneto, mentre il centro storico del borgo mantiene valori solidi ma spesso più accessibili rispetto alla fascia mare. Nel 2025 i prezzi medi comunali per appartamenti si muovono intorno a una fascia circa 2.600–3.200 €/m², con oscillazioni legate a posizione e stato dell’immobile; le abitazioni nel borgo ristrutturate con finiture di qualità tendono a collocarsi nella parte medio-alta del range, mentre gli immobili da ristrutturare offrono un margine di rivalutazione significativo. La domanda è sostenuta soprattutto da seconde case e investitori turistici, grazie alla spinta del brand Bolgheri e alla vicinanza alle spiagge. Il risultato è un mercato vivace, poco inflazionato dall’eccesso di offerta e con un buon potenziale di crescita per gli immobili restaurati con criterio.
Informazioni Turistiche e Storiche:
Castagneto Carducci è un borgo medievale arroccato tra mare e colline, legato al nome del poeta Giosuè Carducci e al paesaggio che lui stesso rese celebre. Il centro storico conserva un impianto urbano compatto, con vicoli, archi, scalinate e terrazze panoramiche che guardano verso il Tirreno e l’Isola d’Elba. A pochi chilometri si raggiunge Bolgheri, con il suo iconico Viale dei Cipressi e le cantine di alcuni dei vini più celebrati d’Italia, meta continua di enoturismo internazionale. Verso la costa, Marina di Castagneto e Donoratico offrono una lunga fascia di spiagge sabbiose, pinete e stabilimenti balneari, ideali in estate ma frequentati anche fuori stagione per sport e natura. Tra eventi culturali, percorsi tra vigneti e oliveti, sagre e degustazioni, questa zona vive un turismo costante e di fascia medio-alta, che sostiene in modo diretto il valore immobiliare del borgo.
Distanze:
Donoratico: circa 5 km
Bolgheri: circa 12 km
Marina di Castagneto Carducci (spiagge): circa 8 km
San Vincenzo (porto e servizi): circa 13 km
Cecina: circa 20 km
Piombino (imbarco Elba): circa 45 km
Livorno: circa 75 km
Aeroporto di Pisa: circa 80 km
Firenze: circa 135 km
Siena: circa 120 km
Rif.:A3165RA2501396A
Prezzo:80.000 €
Tipologia:Appartamento
Superficie:98 m²
Condizioni:Da ristrutturare
Piani tot.:1
Vani:4
Camere:2
Bagni:1
Cucina:Abitabile
Riscaldamento:No
Classe energetica:G
EPI kwh/m2 anno:>175
Comune:Castagneto Carducci
Località:-
Provincia:Livorno
Regione:Toscana
Stato:Italia















