Appartamento in vendita a Firenze
348.000 €
Rif.: A10057RA68364
Camere
Bagni
Superficie
Terratetto ristrutturato con giardino privato e posto auto in zona Isolotto
Appartamento terratetto in vendita a Firenze, zona Isolotto. 87 mq con giardino privato, due camere, due bagni e posto auto. Ristrutturato con finiture moderne, classe energetica A.
Descrizione Generale:
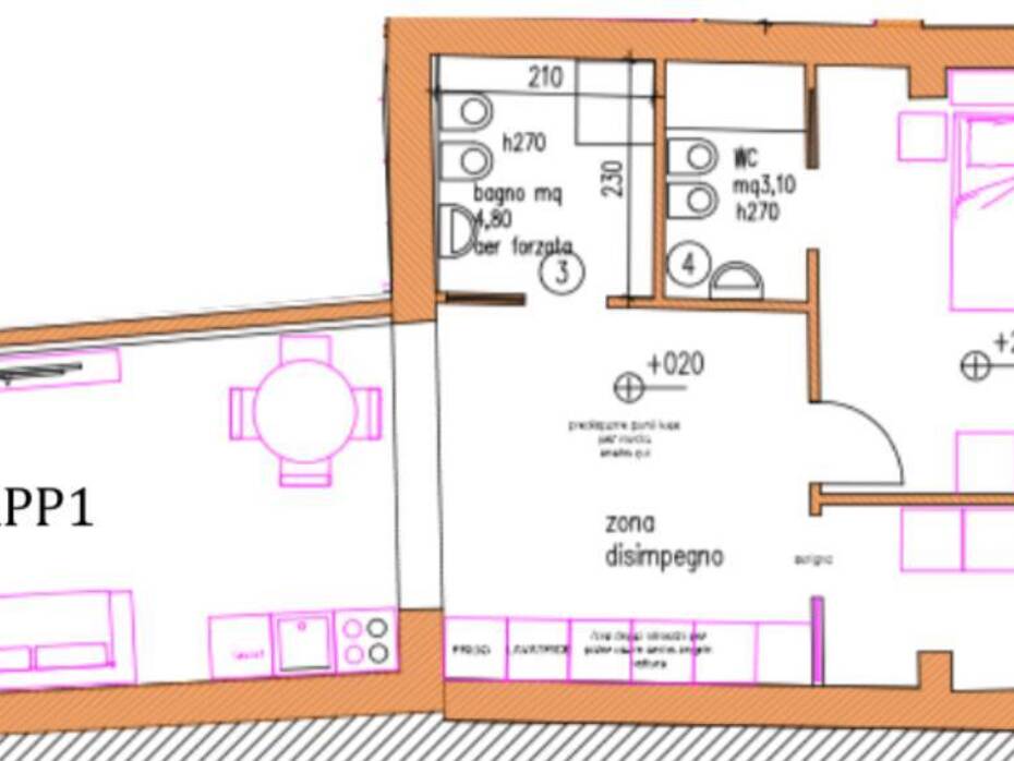
In una tranquilla e ben servita area residenziale dell’Isolotto, proponiamo in vendita un delizioso terratetto di circa 87 mq, completamente e finemente ristrutturato con finiture moderne e materiali di qualità. L’immobile, sviluppato su un unico livello, offre spazi confortevoli e funzionali. L’ingresso indipendente conduce a una zona giorno ampia e luminosa con angolo cottura a vista, due camere da letto e due bagni completi. La proprietà include inoltre una resede privata con giardino e un posto auto esclusivo, elementi che aggiungono valore e praticità alla vita quotidiana.
Descrizione Interni:
La zona giorno si distingue per un ampio soggiorno open space con cucina a vista, arredato in stile moderno e luminoso grazie alle ampie finestre. La zona notte comprende una camera matrimoniale e una camera singola, entrambe ben rifinite. I due bagni, completi di box doccia e sanitari sospesi, sono stati ristrutturati con materiali contemporanei e di pregio. Gli ambienti interni risultano curati nei dettagli e perfettamente distribuiti, ideali per garantire comfort e funzionalità.
Descrizione Esterni:
La proprietà dispone di una resede privata con giardino, perfetta per trascorrere momenti di relax o per pranzi all’aperto. Il posto auto di proprietà rappresenta una comodità essenziale in città, mentre la posizione tranquilla e riservata dell’Isolotto garantisce un’ottima qualità di vita. L’edificio, oggetto di ristrutturazione integrale, si presenta in condizioni eccellenti e non necessita di alcun intervento.
Caratteristiche principali:
Superficie abitabile: circa 87 mq
Vani: 4
Camere da letto: 2
Bagni: 2
Condizioni: ristrutturato
Riscaldamento: autonomo
Cucina: angolo cottura
Condizionatore: sì
Giardino: sì
Posto auto: sì
Classe energetica: A
Dettagli sulle Utenze:
L’immobile è dotato di impianti di ultima generazione, riscaldamento autonomo e predisposizione per aria condizionata. La classe energetica A garantisce consumi ridotti e comfort abitativo. L’efficienza termica e acustica è assicurata da infissi moderni e materiali isolanti di alta qualità.
Usi e Potenzialità:
Grazie alla posizione comoda e al layout funzionale, l’immobile è ideale per single, coppie o piccoli nuclei familiari. È anche un’ottima opportunità di investimento per affitti a lungo o breve termine, data la crescente richiesta di abitazioni moderne nella zona Isolotto di Firenze.
Mercato Immobiliare Locale:
Il mercato immobiliare fiorentino mostra una crescita stabile: a ottobre 2025 i valori medi per appartamenti ristrutturati in zona Isolotto si attestano intorno a 4.100 €/m², con un incremento annuo del +6-7 %. Le proprietà indipendenti o con giardino e posto auto risultano tra le più ricercate. L’area, ben servita dai mezzi pubblici e vicina al Parco delle Cascine, offre un ottimo equilibrio tra qualità e prezzo rispetto ad altre zone centrali della città.
Informazioni Turistiche e Storiche:
L’Isolotto è un quartiere residenziale a sud-ovest di Firenze, noto per i suoi viali alberati, la vivibilità e la vicinanza al centro storico raggiungibile in pochi minuti. Nato negli anni ’50 come quartiere modello, conserva ancora oggi una dimensione umana e verde, con numerosi servizi, piste ciclabili e aree verdi. La prossimità al Parco delle Cascine e al fiume Arno rende la zona ideale per chi cerca tranquillità e accessibilità.
Distanze:
Centro di Firenze: 4 km
Stazione Santa Maria Novella: 3,5 km
Parco delle Cascine: 1,5 km
Tramvia fermata Isolotto: 0,4 km
Ponte alla Vittoria: 2 km
Aeroporto di Firenze-Peretola: 6 km
Autostrada A1 uscita Scandicci: 4 km
Empoli: 25 km
Pisa: 80 km
Siena: 75 km
Rif.:A10057RA68364
Prezzo:348.000 €
Tipologia:Appartamento
Superficie:87 m²
Condizioni:Ristrutturato
Piani tot.:1
Vani:4
Camere:2
Bagni:2
Cucina:Angolo cottura
Riscaldamento:Autonomo
Giardino:4 m²
Classe energetica:A
EPI kwh/m2 anno:>175
Condizionatore
Giardino
Comune:Firenze
Località:ISOLOTTO
Provincia:Firenze
Regione:Toscana
Stato:Italia












