Appartamento in vendita a Firenze ristrutturato con due camere e doppi servizi
368.000 €
Rif.: A10057RA60094
Camere
Bagni
Superficie
Trilocale moderno di circa 72 mq al secondo piano con angolo cottura, cantina e climatizzazione in vendita a Firenze
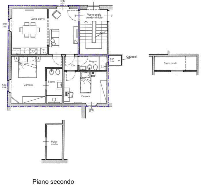
Appartamento in vendita a Firenze. Trilocale ristrutturato di circa 69 mq al secondo piano senza ascensore, soggiorno doppio con angolo cottura, due camere luminose di cui una con bagno privato, secondo bagno, cantina e riscaldamento autonomo. Pronto da abitare, ideale come residenza o investimento in una delle zone più richieste della città.
Descrizione Generale:
In una delle aree residenziali più ricercate di Firenze, proponiamo in vendita un appartamento ristrutturato di 3 vani, per una superficie di circa 69 mq, posto al secondo piano di un palazzo senza ascensore. La casa si presenta in condizioni ottime, pronta per essere abitata senza interventi aggiuntivi, con spese condominiali contenute e una distribuzione interna moderna e funzionale. La posizione, in un contesto urbano di pregio e ben servito, rende questa soluzione adatta sia a chi desidera vivere stabilmente in città sia a chi cerca un immobile con forte appetibilità per il mercato delle locazioni.
Descrizione Interni:
L’ingresso apre su un soggiorno doppio luminoso con angolo cottura, ambiente centrale della casa pensato per la convivialità e per un utilizzo quotidiano comodo. La zona notte è composta da due camere da letto luminose e ben proporzionate; una delle due dispone di bagno privato, elemento che aumenta comfort e privacy. Il secondo bagno serve la casa con praticità, rendendo l’appartamento ideale anche per ospiti o per un utilizzo turistico. La ristrutturazione ha dato agli ambienti un taglio contemporaneo, con impianti efficienti e una qualità percepita elevata, coerente con il profilo della zona.
Descrizione Esterni:
L’appartamento non dispone di spazi esterni privati, ma la posizione all’interno di un quartiere ricco di servizi, aree verdi e collegamenti rende la vita quotidiana estremamente comoda. La cantina di proprietà completa la dotazione, offrendo uno spazio utile per deposito e gestione ordinata della casa.
Caratteristiche principali:
Superficie abitabile: circa 69–72 mq
Vani totali: 3
Camere da letto: 2
Bagni: 2 (uno en suite)
Piano: secondo
Palazzo senza ascensore
Soggiorno doppio con angolo cottura
Cantina di proprietà
Ristrutturato
Riscaldamento autonomo
Condizionatore: sì
Spese condominiali contenute
Dettagli sulle Utenze:
La casa è dotata di riscaldamento autonomo, che permette una gestione indipendente dei consumi, e di impianto di climatizzazione per comfort estivo e invernale. La ristrutturazione comprende aggiornamento degli impianti principali, garantendo funzionalità moderna e standard abitativi elevati.
Usi e Potenzialità:
Grazie alla metratura ben organizzata, ai due bagni e alla posizione di pregio, l’appartamento è perfetto come abitazione principale per coppie o piccoli nuclei familiari. Allo stesso tempo, il taglio “chiavi in mano” e la vicinanza ai poli culturali, universitari e direzionali di Firenze lo rendono un prodotto molto richiesto per affitti a medio-lungo termine o per locazioni turistiche di qualità.
Mercato Immobiliare Locale:
Nel 2025 il mercato residenziale di Firenze continua a essere tra i più forti d’Italia, sostenuto dalla domanda stabile di residenti, investitori e acquirenti internazionali. Nel comune, i prezzi medi di vendita per il residenziale si attestano intorno a circa 4.680 €/m², con una crescita significativa rispetto al 2024, confermando un trend di apprezzamento costante. La fascia di valori per gli appartamenti in città varia ampiamente in base alle zone, ma nelle aree più richieste i prezzi si collocano stabilmente nella parte alta del range comunale. Gli immobili ristrutturati e pronti all’uso, soprattutto di taglio medio-piccolo con doppio servizio, risultano particolarmente liquidi perché intercettano sia il mercato residenziale sia quello degli investimenti a reddito. L’offerta di trilocali ristrutturati in quartieri di pregio resta limitata, elemento che sostiene la tenuta del valore e la velocità di assorbimento sul mercato.
Informazioni Turistiche e Storiche:
Firenze è un patrimonio culturale unico al mondo, con un centro storico riconosciuto dall’UNESCO e un flusso turistico internazionale continuo. A breve distanza si trovano capolavori assoluti come il Duomo con la Cupola del Brunelleschi, Piazza della Signoria, la Galleria degli Uffizi, Ponte Vecchio e Palazzo Pitti con i Giardini di Boboli. La città vive tutto l’anno grazie a musei, eventi, mostre e una scena enogastronomica tra le più rinomate d’Italia. Questa vitalità rende Firenze una delle piazze più solide anche per il mercato delle locazioni, soprattutto nelle zone residenziali prossime al centro e ai principali assi di collegamento. Vivere qui significa avere servizi urbani completi uniti a un contesto storico e artistico senza pari.
Distanze:
Centro storico di Firenze (Duomo): circa 2,0 km
Piazza della Libertà: circa 1,0 km
Stazione Firenze Santa Maria Novella: circa 2,5 km
Galleria degli Uffizi: circa 2,8 km
Ponte Vecchio: circa 3,0 km
Giardini della Fortezza da Basso / area eventi: circa 1,8 km
Università di Firenze (poli centrali): circa 2,0 km
Parco delle Cascine: circa 3,5 km
Aeroporto di Firenze Peretola: circa 6,0 km
Uscita A1 Firenze Nord: circa 7,0 km
Rif.:A10057RA60094
Prezzo:368.000 €
Tipologia:Appartamento
Superficie:72 m²
Condizioni:Ristrutturato
Piani tot.:3
Vani:3
Camere:2
Bagni:2
Cucina:Angolo cottura
Riscaldamento:Autonomo
Classe energetica:G
EPI kwh/m2 anno:>175
Condizionatore
Comune:Firenze
Località:CURE
Provincia:Firenze
Regione:Toscana
Stato:Italia








