Appartamento in vendita a Firenze
358.000 €
Rif.: A10057RA50418
Camere
Bagni
Superficie
Appartamento completamente ristrutturato con terrazzo in zona Campo di Marte
Appartamento in vendita a Campo di Marte, Firenze. Soluzione ristrutturata di tre vani con due camere e terrazzo. Ideale come abitazione principale o investimento.
Descrizione Generale:
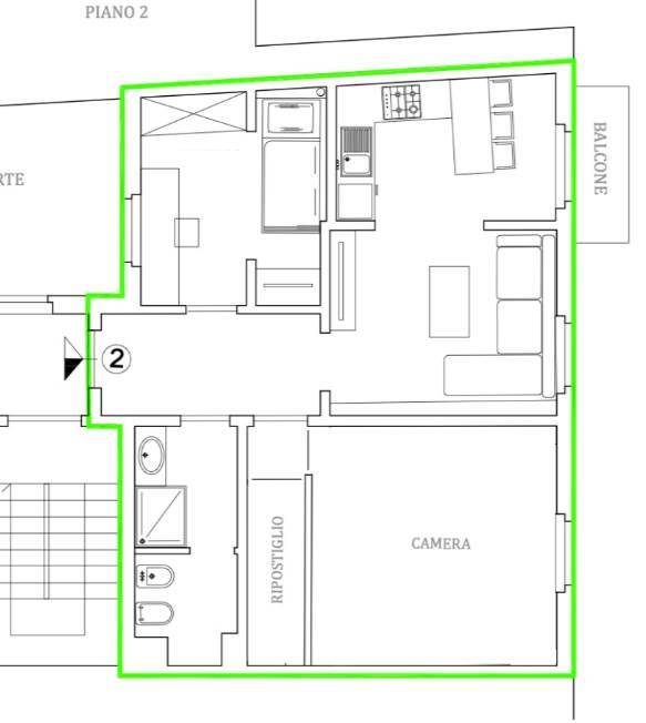
In una delle aree più vivaci e ben collegate di Firenze, nel quartiere di Campo di Marte, al secondo piano di un palazzo in buone condizioni, è in vendita questo appartamento di tre vani completamente ristrutturato. L’immobile, di circa 70 mq, si compone di soggiorno con angolo cottura, due camere da letto, un bagno e un ripostiglio. La posizione strategica e la presenza di servizi nelle immediate vicinanze rendono la proprietà ideale sia per uso residenziale sia per investimento.
Descrizione Interni:
Gli interni sono stati ristrutturati con gusto e attenzione alla funzionalità. Il soggiorno con angolo cottura è ampio e luminoso, perfetto per la vita quotidiana e per accogliere ospiti. Le due camere da letto sono confortevoli e ben distribuite, mentre il bagno, moderno e rinnovato, offre praticità e comfort. Il ripostiglio aggiunge un prezioso spazio per l’organizzazione domestica.
Descrizione Esterni:
L’appartamento dispone di un terrazzo privato, ideale per godersi momenti di relax o per pranzi all’aperto durante la bella stagione. Il palazzo è in buone condizioni e situato in una zona tranquilla, ma ben collegata ai principali servizi e mezzi di trasporto.
Caratteristiche principali:
Superficie abitabile: circa 70 mq
Vani: 3
Camere da letto: 2
Bagni: 1
Condizioni: ristrutturato
Riscaldamento: autonomo
Cucina: angolo cottura
Condizionatore: sì
Terrazzo: sì
Dettagli sulle Utenze:
L’appartamento è dotato di riscaldamento autonomo, che consente una gestione indipendente dei consumi. Tutti gli impianti sono stati aggiornati durante la ristrutturazione e l’immobile dispone anche di condizionatore, garantendo comfort in ogni stagione.
Usi e Potenzialità:
Grazie alla posizione nel cuore di Campo di Marte e alle ottime condizioni interne, questa proprietà rappresenta una soluzione ideale per chi desidera vivere a Firenze in un contesto residenziale di qualità. È inoltre adatta come investimento per affitti a medio o lungo termine, data la vicinanza al centro e ai principali collegamenti ferroviari.
Mercato Immobiliare Locale:
Il mercato immobiliare di Firenze mostra una tendenza di crescita costante. A ottobre 2025, il prezzo medio per gli appartamenti in vendita si attesta intorno a 4.500 €/m², con un incremento annuo di circa 8%. Nella zona di Campo di Marte i valori sono leggermente più alti, intorno a 4.600 €/m². Considerando la superficie di 70 mq, il valore stimato dell’immobile si colloca tra 320.000 € e 330.000 €, in linea con le quotazioni per appartamenti ristrutturati dotati di terrazzo. L’area mantiene un buon equilibrio tra costo e qualità della vita, risultando molto richiesta sia da residenti che da investitori.
Informazioni Turistiche e Storiche:
Campo di Marte è uno dei quartieri più apprezzati di Firenze, situato a nord-est del centro storico. In origine area militare ottocentesca, è oggi un quartiere residenziale verde e ben servito, sede dello Stadio Artemio Franchi e di numerosi impianti sportivi. La vicinanza alla collina di Fiesole e alla stazione ferroviaria omonima garantisce una posizione strategica per vivere la città. Le zone limitrofe offrono inoltre ristoranti, teatri e percorsi culturali che collegano comodamente con il centro storico.
Distanze:
Centro storico di Firenze: 3 km
Stazione Firenze Campo di Marte: 0,5 km
Aeroporto di Firenze-Peretola: 8 km
Collina di Fiesole: 4 km
Piazza della Signoria: 3,5 km
Galleria degli Uffizi: 3,7 km
Autostrada A1 uscita Firenze Nord: 6 km
Linea tramvia/interscambio ferroviario: 0,4 km
Parco delle Cascine: 5 km
Stadio Artemio Franchi: 1 km
Rif.:A10057RA50418
Prezzo:358.000 €
Tipologia:Appartamento
Superficie:70 m²
Condizioni:Ristrutturato
Piani tot.:3
Vani:3
Camere:2
Bagni:1
Cucina:Angolo cottura
Riscaldamento:Autonomo
Classe energetica:G
EPI kwh/m2 anno:>175
Condizionatore
Terrazzo
Comune:Firenze
Località:CAMPO DI MARTE
Provincia:Firenze
Regione:Toscana
Stato:Italia







